Description

UNDER CONTRACT

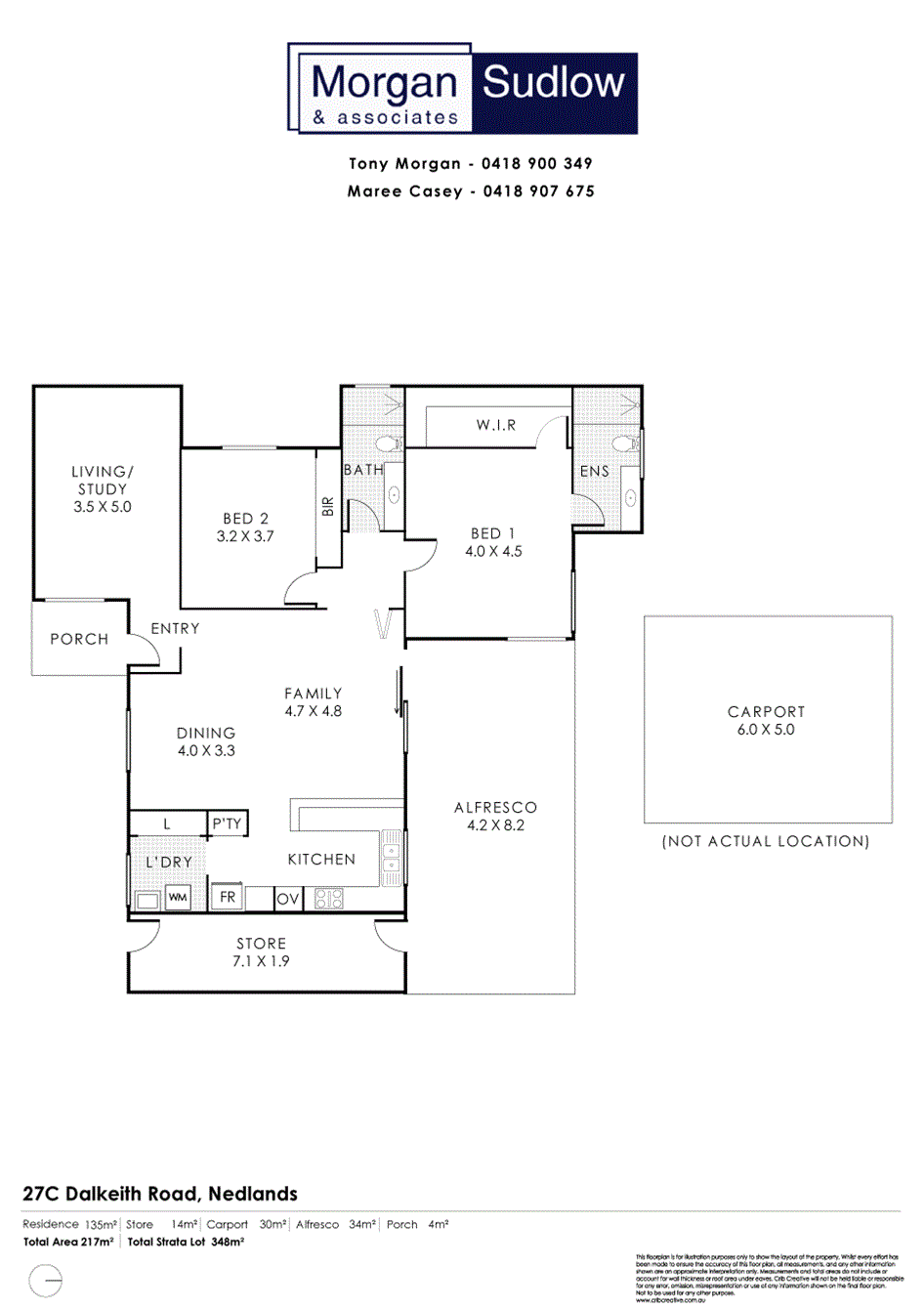
Privately tucked away, this warm and inviting two bedroom, two bathroom home captivates with its courtyard garden and generous living spaces, providing an exciting opportunity for downsizers, professionals and small families to immediately enjoy the advantages of this blue chip address.

Enjoy low-maintenance living from an ultra-convenient location, where shops, amenities and transport are just moments from your doorstep.

Expansive sliding glass doors and windows take full advantage of the private north-facing courtyard garden, inviting abundant natural light into the heart of the home.

Accommodation includes two spacious bedrooms with robes, two bathrooms, a beautiful large open plan living and dining area and a well-appointed modern kitchen. There is also an additional spacious multi-purpose room that could serve as a second living room or study, plus a dedicated laundry, great storage, and a double carport.

Don’t delay, this is the one you have been waiting for!

Please call Tony Morgan 0418 900 349 or Maree Casey 0418 907 675 for further information.

Water rates: $1,490 pa
Council rates: $2,345 pa

No strata levies




Features

  • Ensuite
  • Courtyard
  • Outdoor Entertainment Area
  • Shed
  • Fully Fenced
  • Split System Air Conditioning
  • Evaporative Cooling
  • Built in Robes