Description

UNDER CONTRACT

"Mount View"
Address: 2950 South Western Highway, Serpentine WA
Land Size: 46.35 hectares (114.53 acres)
Price: Expressions of Interest

Offered for the first time since 1946, this exceptional lifestyle property presents a rare opportunity to secure a substantial parcel of land with rich history, versatile infrastructure, and outstanding lifestyle features in Serpentine.

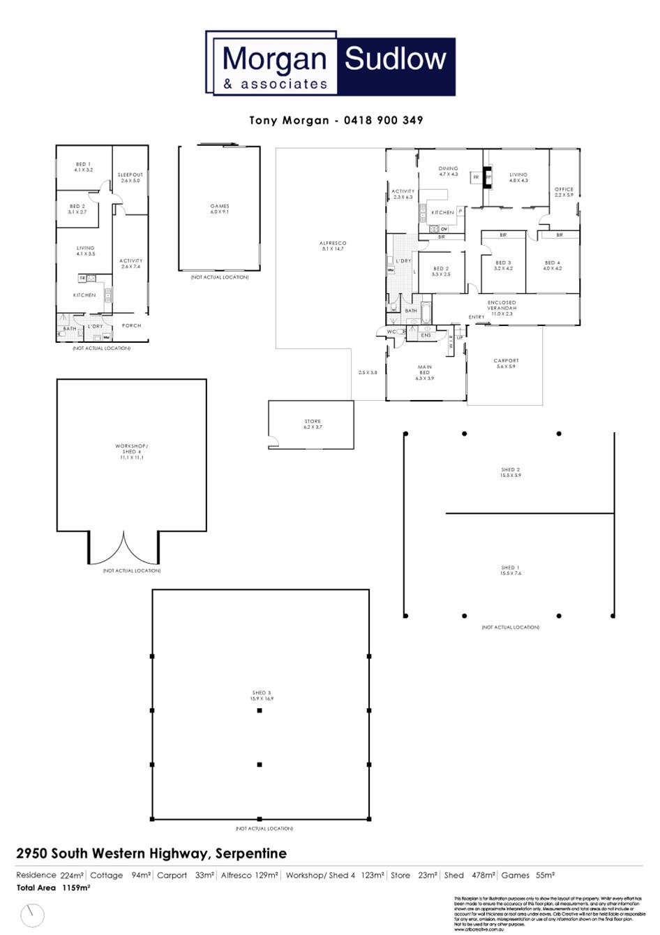
Main Residence & Other Accommodation
Main Residence:
• Solid brick and tile 3-bedroom, 1-bathroom home with character features including high ceilings, polished jarrah floorboards and sash windows
• Split system a/c in 3 rooms and fireplace in the lounge room for winter warmth
• Expansive 8m x 12m patio with alfresco area overlooking the pool and perfect for entertaining
Granny Flat or Studio
• Granny flat with separate bathroom and WC
Outdoor Features
• Below-ground fibreglass swimming pool (60,000L | 9.3m x 4.6m) with spa
• Tennis court with concrete base and lighting
• 3000m² enclosed lawn area
Separate Cottage with own entrance
* ideal rental opportunity or managers/caretaker residence with a little TLC and tidy.

Land & Agricultural Potential
• Approx. 18ha replanted area with Sugar Gums (12–14 years old) offering commercial income potential
• Multiple sheds for storage and hay (capacity for 1600 bales)
• Good groundwater supply with gravity-fed water from main bore
• Winter creek
• 3 x 45,000L water tanks
Access & Location
• Located only 1 hour from Perth on the scenic South Western Highway and just 5 minutes drive (5.5km) south of Serpentine town centre and amenities.
• 3-road frontage to South Western Highway, Fisher Road and Hardey Road.

This is a once-in-a-generation opportunity to own a landmark property with lifestyle, income, and legacy potential. Whether you're looking to expand your agricultural interests, enjoy a peaceful rural lifestyle, or invest in a property with future development prospects – this property delivers.
Please contact Tony Morgan, Morgan Sudlow & Associates 0418 900 349 to arrange a private inspection.




Features

  • Inground Pool
  • Inground Spa
  • Tennis Court
  • Open Fire Place
  • Outdoor Entertainment Area
  • Shed
  • Workshop
  • Floor Boards
  • Split System Air Conditioning